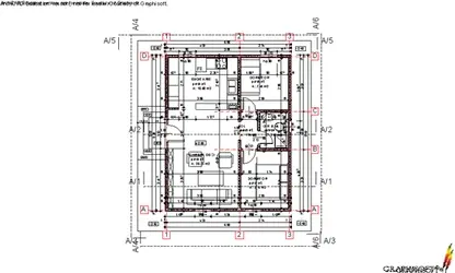
Building plans

World » Romania » Beius » Habitat site

And so we built a house. Up front, everyone had doubts about whether it was in fact smart to let a bunch of stupid Dutch technical engineers help in building the house. Clearly, your average carpenter or workman would be a much better choice than anyone of us.

It turned out to be less bad as expected. The only problem being that we simply were with too many people. The two or so Romanians on site who were able to do something of a bit of project management just weren't enough. It took a bit of time for the whole team to work reasonably smoothly. By the end of the week, we had succeeded reasonably well. Although by then, almost all the time, half of the our group would be taking a nap somewhere on some remote part of the building area.

We spent the first day mainly building 18 'triangles' of wood, which were going to support the roof. Considering the house was only going to be some 8 meters long, 18 of these things seemed just a tad on the safe side. Just a hint as to how confused management was; we were going so fast that, by the time we had built 18, it became clear that two had to be redone because they needed to be slightly different. The Romanians just couldn't keep up.

The first day was hard. Not because it was physically a challenge, but because the outside temperature was higher than our body temperature. Cooling down was a real problem and already some of us were shedding the coveralls everyone was wearing. Resulting in sunburn for those who did.

Related:  A busy Saturday with extreme lefts and rights

More hands

Lunch was always a surprise. On Monday and Friday we had pizza that more resembled circular slices of leather topped of with pure fat. If you held the pizza at an angle, the fat would just run of.

On Tuesday and Thursday we had home-made sandwiches, made by the mom of one of the Romanian workers. The amount of butter generally surpassed the amount of bread in the sandwiches. I have blocked our Wednesday lunch.

Shortly after Monday midnight, going on Tuesday, Marco and Joost, who both had been stuck in Vienna because of Marco's expired passport, arrived. They had managed to get a temporary passport for Marco at the Dutch embassy in Vienna on Monday morning and had come straight to Beius.

However, as if to punish Marco even more, on Wednesday evening, during a game of soccer with a bunch of Romanians, he strained his ankle, making it impossible for him to even walk. On Thursday, when I went to the doctor with him and Emil, our guide, it turned out that he had a small crack in his ankle bone.

On Monday and Tuesday, during lunch, some of us played soccer against some of the Romanians. We always lost humiliatingly and, after finally getting a 6-2 lead in the fourth game but loosing 6-7, we demanded a rematch.